Commercial Holiday Let
The Wilcox family has been making Somerset cider since 1868. What started as a hobby became a commercial venture in 2004, growing from 15,000 to 40,000 litres annually. Pressing takes place at Broadcroft Farm, with cider sold online and in a Cheddar Gorge shop alongside local cheeses and chutneys.
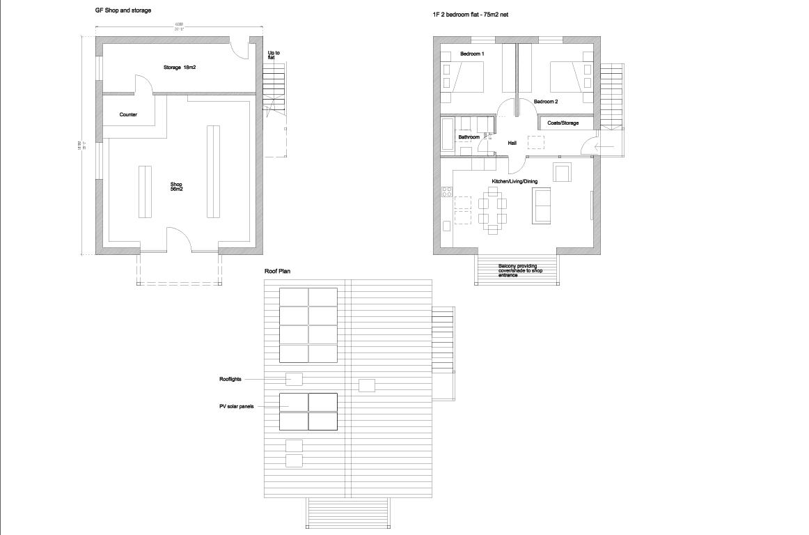
To support continued growth, the Wilcox family wished to introduce a farm shop at Broadcroft Farm, offering locally sourced food and drink. A holiday rental flat above the shop would provide additional income to help fund the project. Replacing existing outbuildings, the new structure was designed with a simple agricultural aesthetic, using green oak cladding and a low-pitched fibre cement roof to complement its rural surroundings.
A key challenge was ensuring accessibility for all visitors, requiring creative design solutions to navigate site constraints. The proposal aligned with government policies supporting rural business and tourism, and following discussions with the Parish Council and Sedgemoor Planning Department, it was refined to replace a previously proposed residential unit with a holiday let.
