Commercial, fit-out with Listed Building Consent
FSC is a family-run company based in Somerset, established in 1989. Specialising in food-to-go—ranging from sandwiches and salads to pastries, sushi, and juices—FSC supports retailers throughout the supply chain, from concept development to daily product delivery. Their clients have included Shell UK, Dunelm Mill, Debenhams, John Lewis, Starbucks, Autogrill, and Thorntons.
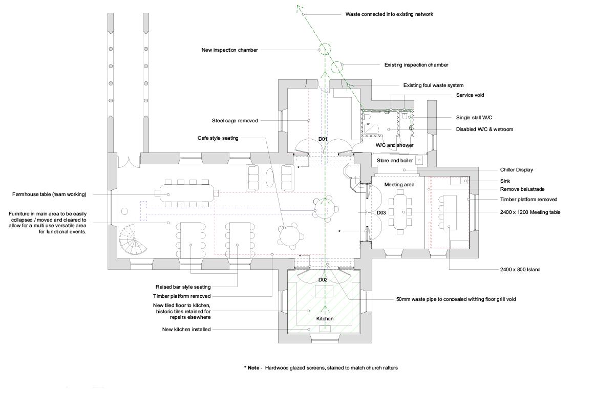
To further their innovation, FSC secured the freehold of this 13th century church at Flax Bourton to house their concept development team. With its striking architecture, open-plan layout, and existing commercial use the chapel provided the perfect environment for creative product development. A mezzanine office further enhanced the functionality of the space.
At this facility, FSC develops and presents new product innovations to both existing and prospective clients. All finished products are manufactured off-site, with prototype batches occasionally prepared in-house for demonstration purposes. The facility primarily serves as a hub for sales activity, key client meetings, and the administrative processes involved in transforming a concept into a commercially viable product.
With this new creative space, FSC continues to push the boundaries of food innovation while reinforcing its position as a leader in the food-to-go sector.
